Casa America
House.
d. 2010.
San Pedro G. G., MX-NLE.
Design development.
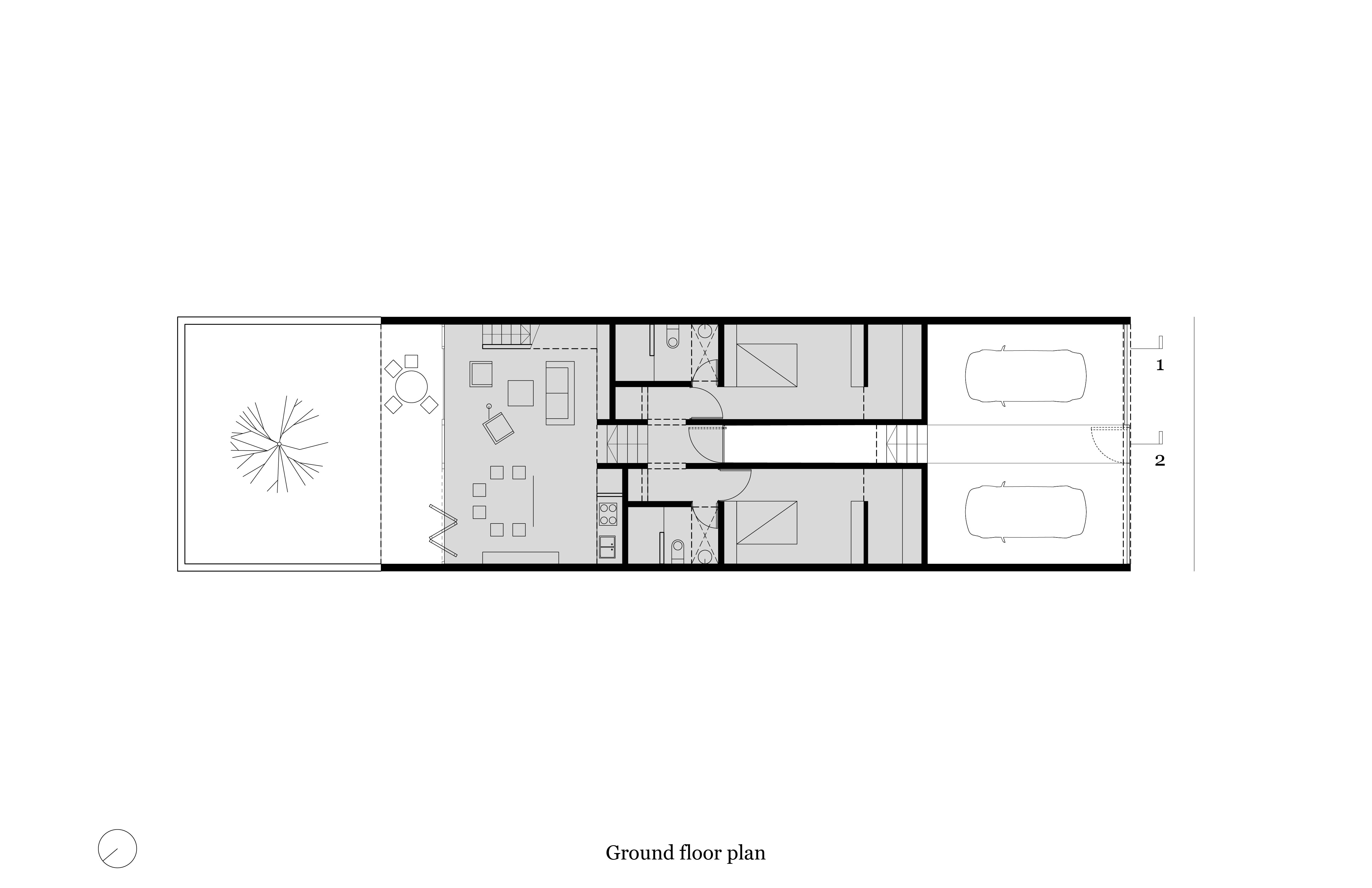
Plot: 240 m2 (2 583 ft2).
Area: 310 m2 (3 337 ft2).
Team: Margarita Flores, Rubén Octavio Sepúlveda Chapa, Abel Salazar López, Ana Paulina Reyes.
plans




