Casa dLZ
House.
d. 2015.
San Pedro G. G., MX-NLE.
Design development.
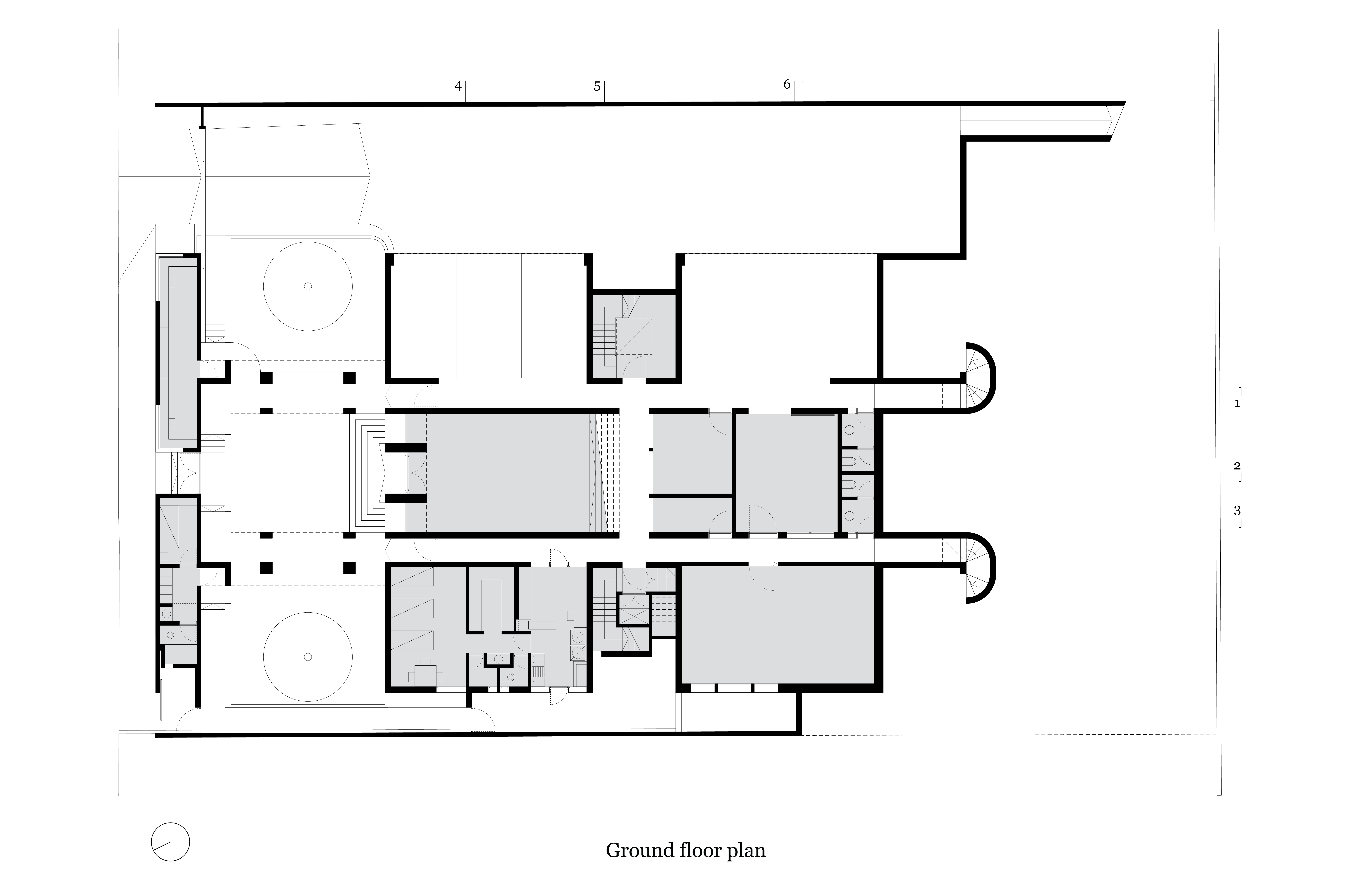
Plot: 1 498 m2 (16 124 ft2).
Area: 1 487 m2 (16 006 ft2).
Team: Rubén Octavio Sepúlveda Chapa, Abel Salazar López, Jorge Alberto Jiménez, Marcela Lorena Martínez.
Collaborator: Jesús Rodríguez.
plans










