︎
works and projects
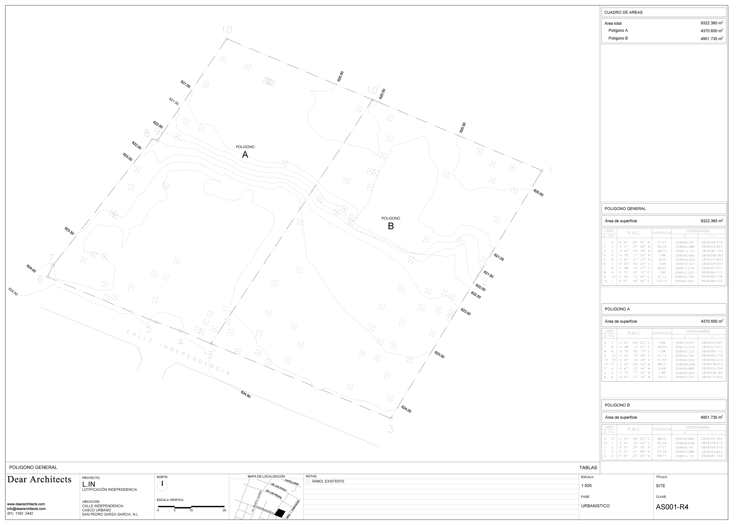
Lotificación Independencia
Plot subdivision and equipment for Sorteo Tec.
d. 2018, b. 2019.
San Pedro G.G., MX-NLE.
Project (built).
Plot A: 4 371 m
2
(47 049 ft
2
).
Plot B: 4 952 m
2
(53 303 ft
2
).
Team: Rubén Octavio Sepúlveda Chapa, Abel Salazar López.
Collaborator: Jorge Alberto Jiménez, Grecia Cortés Terán, Juan Manuel Fernández.
︎︎︎
Mark